- ホーム
- 【売物件】氷上2階建店舗付き 4SLDK物件(No.175)
【売物件】氷上2階建店舗付き 4SLDK物件(No.175)
地域活性課 : 2026/04/13
外観
内観
風呂・トイレ
バルコニー
駐車スペース
診療所部分
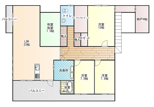
間取り図
1階
2階
| 取引形態 | 中古売店舗付き住宅 |
|---|---|
| 所在地 | 三木町氷上 |
| 最寄駅 | 高松琴平電鉄長尾線「学園通り駅」 徒歩7分 |
| 価格 | 3,180万円 |
| 面積 | 土地面積502.55平米 建物面積341.03平米 |
| 建築年 |
2005年6月 |
| 設備 |
(1)水道:上水道 (2)電気有 (3)給湯設備:電気 (4)トイレ:浄化槽 (5)風呂:電気 (6)テレビ:地デジ (6)その他 駐車場(11台可能) |
| 建築構造 | 鉄骨造 |
| その他 |
駐車場は店舗とは別にシャッター付き車庫に2台駐車可能です! |
地域活性課 ふるさと係
〒761-0692 香川県木田郡三木町大字氷上310番地
Tel:087-891-3320
〒761-0692 香川県木田郡三木町大字氷上310番地
Tel:087-891-3320






